PLANTA E LAYOUT

PROJETO RESIDENCIAL

DESENVOLVIMENTO DE UMA RESIDÊNCIA NO SOFTWER REVIT PARA TER IDEIA DE COMO O PROGRAMA FUNCIONA E QUAIS SUAS VANTAGENS EM RELAÇÃO AO SISTEMA BIM!

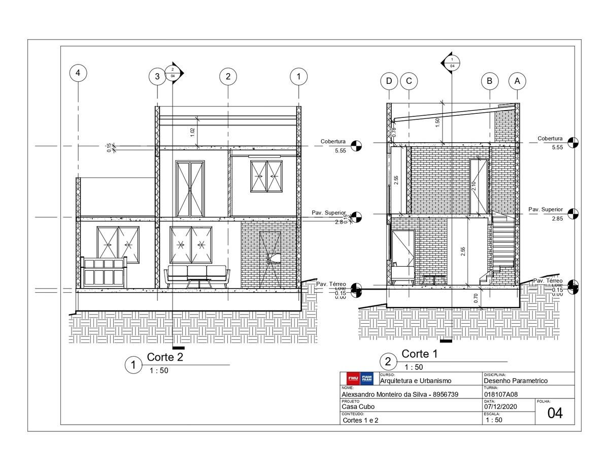
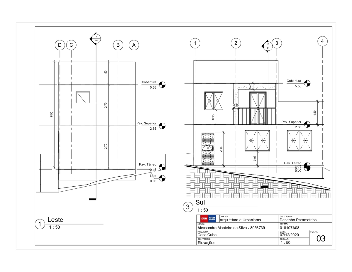
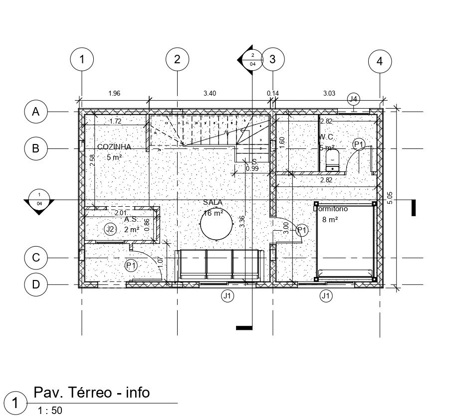
Este projeto residencial foi desenvolvido no simulador de obra Autodesk Revit, residência de 45m² o projeto foi desenvolvido para aperfeiçoar o conhecimento BIM e o conhecimento sobre a sua tecnologia ao longo do desenvolvimento do projeto, ainda logo que a tecnologia será obrigatória a partir do ano de 2021. Além é claro de ver suas vantagens em relação a outros programas de desenho técnico como o AutoCAD.